Schuifdeursysteem Nis douche (set 2)

Schuifdeursysteem Nis douche (set 2)

Artikelnummer: 42BX-01 set 2

  • Glasdikte: 8mm
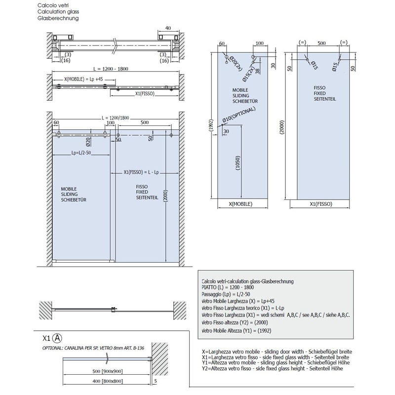
  • Afmeting: 1200mm tot 1800mm

Nisdouche schuifdeursysteem, 1 schuifdeur en 1 vast paneel. Excl. knop, afdichtprofielen en u-profielen (t.b.v. wandmontage). 

Optioneel bij te bestellen:

  • Douche knop
  • Douchestrip met bolprofiel
  • U-profiel glans chroom
  • Varkenssnuit sleutel t.b.v. montage

LET OP!
Indien de maatvoeringen afwijken van de standaard maten, dan dient er met het onderstaande rekening te worden gehouden:

  • Toeslag van 35%!
  • De rails wordt niet voorgeboord (M6 boorgat), dit is ENKEL gedaan bij de uitvoering, die binnen de standaard maatvoeringen blijft!